• Client: ‘s Heeren Loo Care Group
  • Location: Apeldoorn, the Netherlands
  • Year: 2015-present

Groot Schuylenburg – ’s Heeren Loo Care Group

Apeldoorn, the Netherlands - “Working together to ensure a high quality of life for people with a disability,” is the objective of the ‘s Heeren Loo Care Group. Some people with a learning disability feel really at home in a protected environment. With peace and structure, removed from the hustle and bustle of society. ‘s Heeren Loo Care Group offers these people a place to live at beautifully situated, sheltered locations like the Groot Schuylenburg estate in Apeldoorn, where daily activities, sport and medical assistance are all close by.

Project data

LocationApeldoorn, the Netherlands
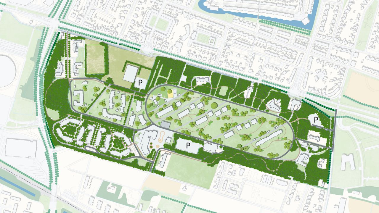
AssignmentMaster plan, development strategy, design of various gardens
Design2015-present
Client‘s Heeren Loo Care Group
TeamLeonieke Heldens, Sjaak Punt
Groot Schuylenburg – ’s Heeren Loo Care Group
Groot Schuylenburg – ’s Heeren Loo Care Group

Changing demands and requirements in terms of care mean that the estate is constantly under development. Existing buildings are demolished, new buildings are constructed and historic buildings are renovated. Over the past few decades, requirements and demands in terms of care have begun to erode the green character of the estate. While the greenery in fact contributes to clients’ health and wellbeing.

We drew up a Development Vision 2040 for Groot Schuylenburg, which fits with Apeldoorn’s ambition to protect and improve the connection between the city and the countryside to the east. The estate forms part of this stretch of greenery and is a place where residents, visitors and employees all feel at home.

In addition to ensuring the valuable history remains visible, the development vision focuses on a clear and safe infrastructure and the green experience at the site. This experience will be improved by introducing a number of areas, each with a different feel and all fitting with the identity of the estate: a forest planted with spring-flowering bulbs, a monumental forest and the park site, for example. There will also be a new entrance, in addition to the historical one. 

The development vision will allow the care group to continue to grow, with a focus on a healthy and sustainable future. For the organization itself and for the people that live and work at Groot Schuylenburg.