• Klant: JOIN ontwikkeling
  • Locatie: Zeist
  • Jaar: 2011-2018

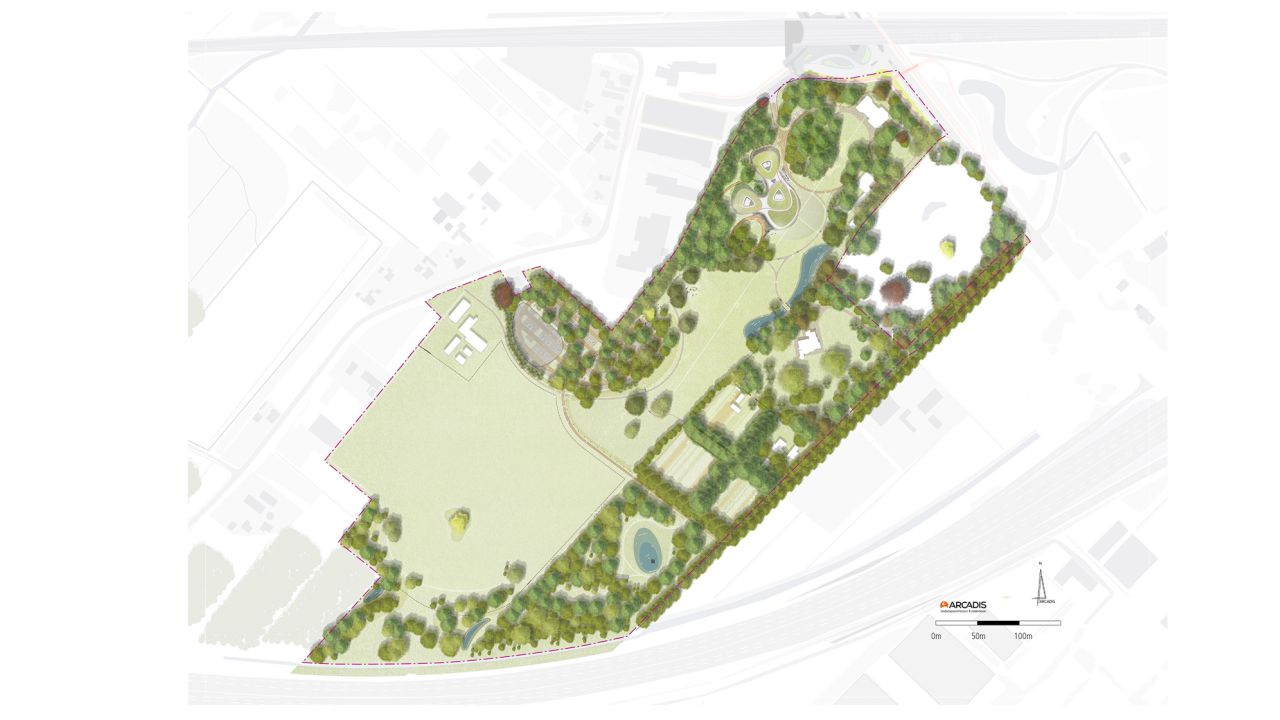
Campus Triodos Bank, Landgoed De Reehorst, Zeist

Zeist - Triodos Bank heeft de missie om een duurzame samenleving te realiseren. Dat doet de bank door mensen bewust te maken van de gevolgen van hun economisch handelen op de medemens en de aarde. De missie van de Triodos Bank komt op Landgoed De Reehorst tot leven. Met het nieuwe duurzame kantoorgebouw krijgt de geboortegrond van de bank weer een kwaliteitsimpuls. En passant krijgt Landgoed De Reehorst een sterke economische drager waarmee het de 21ste eeuw in kan.

Projectgegevens

LocatieZeist Google Maps
OpdrachtSchetsontwerp, Voorlopig Ontwerp, Definitief Ontwerp
Ontwerp2011-2018
In uitvoering2019
KlantJOIN ontwikkeling
TeamLeonieke Heldens, Joep van Baast, Sjaak Punt, Hans Smolenaers
In samenwerking metRAU architecten + Ex Interiors
Campus Triodos Bank, Landgoed De Reehorst, Zeist
Campus Triodos Bank, Landgoed De Reehorst, Zeist
Campus Triodos Bank, Landgoed De Reehorst, Zeist
Campus Triodos Bank, Landgoed De Reehorst, Zeist

Samen met de Triodos Bank, Stichting Landgoed De Reehorst en andere partijen in het gebied hebben wij ‘De Reehorst principles’ opgesteld. Het leidende principe: natuur, cultuur en economie ontwikkelen zich in evenwicht met elkaar. Vanuit dit principe wordt het landgoed een plek die mensen inspireert en waar zij in contact komen met andere mensen, met kunst en cultuur, met landbouw en natuur.

Het nieuwe hoofdkantoor voegt zich als een nieuwe tijdslaag in het landschap van het landgoed. Zo is bij de plaatsing en vorm van het gebouw bijvoorbeeld rekening gehouden met vliegroutes van vleermuizen en afstand tot de bestaande bosrand. Nieuwe boomgroepen versterken de lange zichtlijnen vanuit het kantoor over het landgoed. Afwisselende routes leiden de bezoekers langs schilderachtige plekken als het amfitheater en de spiegelvijver. Het landgoed is opgebouwd uit een opeenvolging van intieme ruimtes rondom het gebouw tot een weids uitzicht bij de A12.

Het landgoed en de begane grond van het gebouw, met restaurant en vergadercentrum, is openbaar toegankelijk. Natuur op het terrein krijgt een impuls door uitbreiding van het Natuurnetwerk Nederland (NNN), met onder andere nieuw aangelegde poelen. Hierdoor ontstaat een verbinding tussen de Utrechtse Heuvelrug en het Kromme Rijngebied.

Samen met Triodos Bank, Architectenbureau Thomas Rau en Interieurarchitect Odette Ex hebben wij een plek gerealiseerd waar het prettig is om te werken en om te zijn. De balans tussen cultuur, natuur en economie op Landgoed De Reehorst verrijkt de identiteit van de Triodos Bank en verbindt de bank letterlijk en figuurlijk met haar omgeving.